Omakotitalo,  208,0 m2

5h+k+s   395 000,00 €

map Seppäläntie 130 , 08800 Lohja

my_location Katso sijainti kartalla

Sovi esittely, kohdetta välittää:

Sovi esittely, kohdetta välittää:

Kohteen kuvaus

LOHJANJÄRVEN LOHJANSAARESSA VANHA MAATILAN PIHAPIIRI RAKENNUKSINEEN

Hieno, idyllinen kokonaisuus 2,82ha, joka sopii moneen käyttöön; täällä on harjoitettu mm. majoitus- ja ravintolatoimintaa, myymälätoimintaa sekä muutakin yritystoimintaa. Mutta sopiihan tämä toki vain omaankin käyttöön ja vaikkapa koko suvun vapaa-ajankohteeksi !
Vehreä pihapiiri, jossa isoja vanhoja puita ja kauniit maalaismaisemat järvinäkymällä.

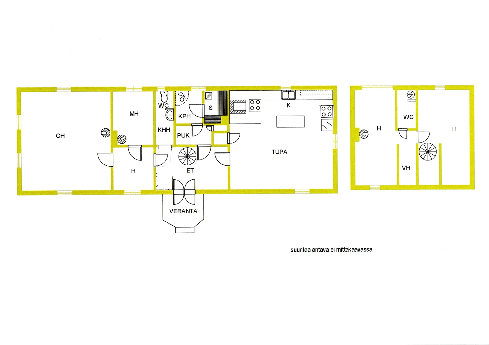
Hirsinen päärakennus n. 208 m2 on rakennettu pääosin 1818 (vanhin osa tiettävästi jo 1600-luvulta).
Lisäksi runsaasti muita rakennuksia, mm. noin 680m2 navettarakennus on saneerattu juhla- ja pienteollisuus yms käyttöön sopivaksi. Lisäksi on mm. 3 kpl hirsisiä, 2-kerroksisisia majoitusaittoja, kesäravintolarakennus, myymälärakennus, hirsisauna, kota yms.

Kiinteistöillä on venevalkamaoikeus läheiseen Lohjanjärveen, jossa oma laituri ja venepaikkoja.

Harvinaisen monipuolinen kohde, johon kannattaa tutustua.

Sovi oma esittelyaika:
Timo Lahtinen p. 0400 472 675,timo.lahtinen@pihlstromlkv.fi

Kohteen kuvat

Kohteen sijainti

Perustiedot

Kohdenumero21989593
Sijainti
  • Lohjansaari Marttila
TyyppiOmakotitalo
Huoneistoselitelmä5h+k+s
Asuinpinta-ala208 m²
Kokonaispinta-ala208 m²
Lisätietoja pinta-alastaAlakerta noin 180m² ja yläkerta noin 28 m²
Kerros1-2 / 2
Lisätietoja rakennusvuodestaVanhin osa luultavasti jo 1600-luvun lopulla rakennettu ja muutoin n 1817-1818. (lisäksi toki muutoksia ja remontteja vuosien varrella, kuten mm. wc-yläkertaan 2013, alakerran sauna- ja suihkutila 2004 yms.)
VapautuuSopimuksen mukaan

Hinta ja kustannukset

Velaton hinta395 000 €
Kiinteistövero2033,28
Vesimaksu
  • € / kk
Tiemaksut108,00 €
Lisätietoja maksuistaNormaalit kiinteistön käyttö- ja ylläpitokulut kuten mm. sähkö kulutuksen mukaan (n. 18000 kwh/vuosi), jätehuolto Rosk Roll taksojen mukaan 268;-/vuosi, tiemaksu, nuohous, jätekaivojen tyhjennys n. 250;-/vuosi, vakuutus yms. Lisäksi ostaja maksaa kiinteistökaupan varainsiirtoveron 3% kauppahinnasta.

Tilat ja materiaalit

Asunnon tilat ja materiaalit
  • Pääasiallinen rakennusmateriaali: hirsi
Rakennusmateriaalien kuvausVanha ja idyllinen hirsirakennus, jota saneerattu perinteitä kunnioittaen.
Saunan kuvaus
  • Oma sauna
  • Sähkökiuas, puukiuas
  • Talon saunassa sähkökiuas ja pihasaunassa puukiuas
Säilytystilojen kuvaus ja lisätiedotSäilytystilaa on TODELLA PALJON piharakennuksissa ja navettarakennuksessa.

Lisätiedot

Tulisija muuTakka
TulisijaPäätalossa 2 pönttöuunia, avotakka, suuri leivinuuni/puuhella, yläkerrassa takka
YleiskuntoHyvä
Lämmitysjärjestelmän kuvausPuu, sähkö
Kiinteistötunnus/laitostunnus444-430-1-26, 444-430-1-19, 444-430-1-18
Taloyhtiön kuntoarvioKuntotarkastus tehdään ennen kauppaa kun ostajaehdokas on löytynyt.
Tontin omistusOma
Tontin/kiinteistön nimiRantala 1:26, Martinpiha 1:19, Martinala 1:18
Tontin pinta-ala2.825 ha
Lisätietoja tontistaKolmesta, toisiinsa rajoittuvista kiinteistöistä muodostuva upea kokonaisuus, jossa useat wanhat hirsirakennukset muodostavat idyllisen pihapiirin Lohjanjärven lähettyvillä. Venevalkamaoikeus ja oma laituri läheisen Lohjanjärven rannalla (mutta ei kuitenkaan omaa rantaa).
Tie perilleKyllä
Sähköliittymä siirtyyKyllä
Vesihuollon kuvausPorakaivo
ViemäriOma
Vesihuollon kuvausOma porakaivo sekä rengaskaivo, josta vesi pihasaunaan.
Katto
  • Harja
  • Pelti
Lisätietoja rakennusoikeudestaRakennusoikeuden laatu ja määrä on tarkastettava luvan myöntävältä viranomaiselta eli Lohjan kaupungilta.
Lisätietoa muista rakennuksistaPäätalon lisäksi kiinteistöillä on 9 kpl muita rakennuksia, pääosin vanhoja hirsirakennuksia (majoitusaittoja 3kpl, sauna, ravintolarakennus yms), vanhasta navetasta tehty monipuolinen rakennus, jossa mm. keittiö, työtilaa, kokoontumistilaa, myymälätilaa yms. Kiinteistöllä on harjoitettu mm. majoitustoimintaa, jolloin majoitustilaa on ollut noin 21-23 hengelle. (katso rakennuksista tarkempi erittely mynntiesitteen liitteenä).
Ranta
  • rantaoikeus
  • Kiinteistöillä on oikeus venevalkamaan läheisen Lohjanjärven rannassa, jossa käytössä 3 kpl venepaikkoja.
  • Lohjanjärvi

Välitysliike

Yhteystiedot
  • Kiinteistöjen Myyntikeskus Harry Pihlström LKV [A]
  • Vihdinkatu 6, 08100 Lohja
  • timo.lahtinen@pihlstromlkv.fi
  • +358400472675
  • 0400 472 675
infoTäydelliset kohdetiedot saat tilaamalla myyntiesitteen, ota yhteyttä välittäjään.

Sovi esittely, kohdetta välittää:

Ota yhteyttä välittäjään

    Annan suostumukseni siihen, että välitysliike saa lähettää minulle sähköistä suoramarkkinointia (esim. tekstiviesti, sähköposti)

    » tietosuojaseloste